建材說明:廚具:STOSA系統廚具;衛浴:TOTO;
五金:Hansgrohe;國際牌暖風機;YKK氣密窗、5+5膠合玻璃。
公設項目:迎賓大廳、中庭花園、空中花園、閱讀區、藝文展演廳、多空能派對
廳、咖啡廳、閱覽室、健身房、瑜伽教室、KTV室、露天野宴區、宅配區、信箱區、曬被區。
全棟樓高挑高3.3M
電動車規劃:預留線架槽至各車位
汽機車分道,提升車輛出入安全
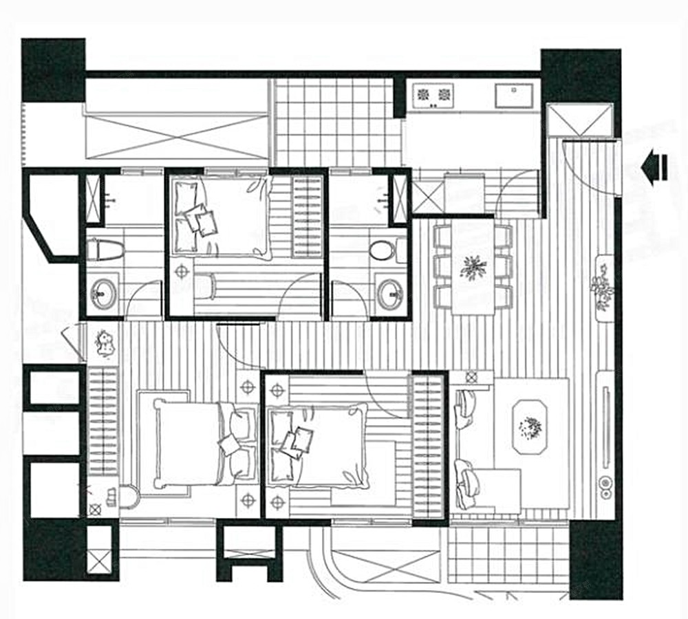
純三房規劃,單純住宅
【必買的理由】★高樓層,坐北朝南,無限永久棟距!
★邊間,三面採光,通風一級棒!★室內格局方正,使用大空間!
★入門玄關,落塵區,裡外分明!★雙衛浴開窗,通風且不潮溼!
★電梯直達地下室,獨立大平車!★24小時管理,安全一把罩!【生活】
★鄰近全聯福利中心,生活機能讚!★鄰近三分埔公園,運動健身好輕鬆!
★鄰近昌平商圈,崇德商圈,吃飯免煩惱!★鄰近文心國小,崇德國中,九年免接送!
★近普林斯頓國小,北屯知名明星學校!【交通】★鄰近公車站,搭車便利佳,大台中跑透透!
★鄰近74號生活圈,開車只需約7分鐘!【未來】★近北屯國民運動中心,休閒好去處!
★預計114年底全台知名百貨『漢神百貨』即將完工!★北屯區地段,台中人口數最高,未來價值無限!
永恆不動產~怡靖很高興為您服務
專業、效率、誠信、負責
是我堅持的理念初衷
歡迎屋主委託定當為您使命必達
買房賣房交給我就對了!
只要您有喜歡,價格我來幫您談
歡迎來電,加line好友,進一步詢問物件
📢賞屋專線:0960-710-922 吳小姐
LIND ID:0960710922🌸嘉華
⛔ 591常常會漏訊息.請來電預約賞屋⛔


























