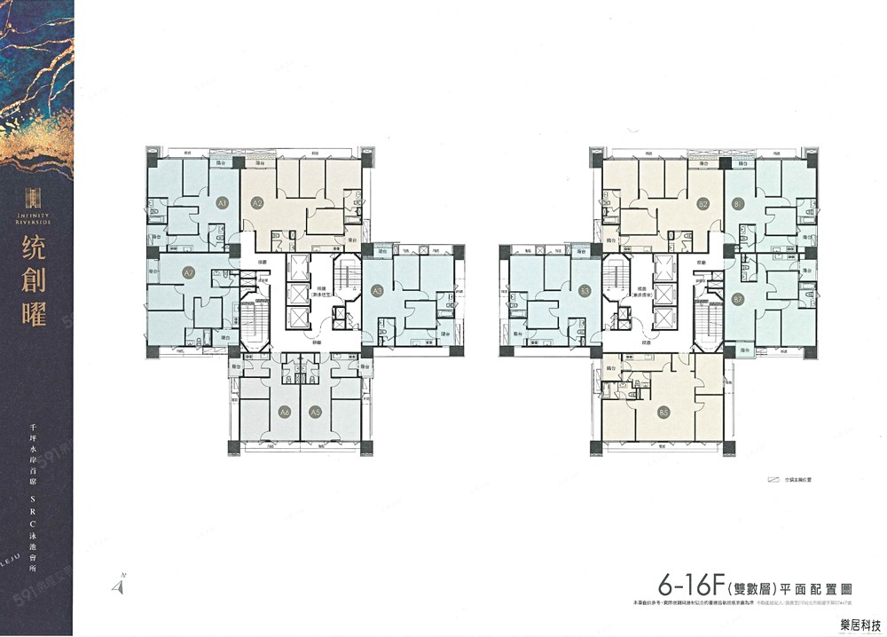
本案分為A/B棟,A棟標準層採1層6戶,B棟標準層採1層5戶,分別搭配3部電梯,電梯戶別比例佳,公設比平均約34%。
B3戶面環河西路, 17樓以上有管道間,兩邊棟距會變近
所以16樓是最高樓+無管道間+ 比樓上棟距遠 ,最佳選擇
B3主臥有雙面採光。
主臥衛浴有開窗,且有浴缸,客用衛浴沒有開窗,但有乾濕分離。
廚房為獨立設置,一字型廚具預留冰箱及電器櫃空間,動線連通工作陽台。
客廳方正,傢俱好挑選,且旁邊有景觀陽台。
梁柱外移規劃,室內空間好規劃。
水岸第一排,無高架橋遮擋視野:
1,819坪大基地+純住宅規劃,是整個江翠重劃區最大純住宅基地。
基地方正三面臨路,無高架橋,2樓以上即享水岸第一排永久視野棟距。
2. 超低建蔽率,千坪四季花園,400坪全齡豐富公設:
建蔽率約22.8%,打造呼應江翠水岸的豐富花園景緻。
園林意象,設計有高低起伏小丘陵,增加景觀豐富性。
20米室內溫水泳池、KTV、琴藝室、全日餐廳、健身房、兒童遊戲室、棋藝室等等多樣公設。
健身房運用大面積落地窗,運動健身同時也可以欣賞完整中庭景觀。
3. SRC結構6級耐震,格局規劃佳:
優於國家耐震係數,耐震達6級,SRC結構強度全面升級。
格局方正好規劃,戶戶皆雙面採光,室內無小樑。
建材為Rinnai廚具、TOTO衛浴、Panasonic暖風機,並配有日本YKK氣密窗,有效隔絕噪音。
1層5-6戶配置3部電梯,電梯戶數比例佳,且每部電梯皆可直達地下室。
標準層樓高3.5M,樓地板厚度20CM、25CM,皆高於一般建案平均,室內空間感及隔音性更佳。
B3戶面環河西路, 17樓以上有管道間,兩邊棟距會變近
所以16樓是最高樓+無管道間+ 比樓上棟距遠 ,最佳選擇
B3主臥有雙面採光。
主臥衛浴有開窗,且有浴缸,客用衛浴沒有開窗,但有乾濕分離。
廚房為獨立設置,一字型廚具預留冰箱及電器櫃空間,動線連通工作陽台。
客廳方正,傢俱好挑選,且旁邊有景觀陽台。
梁柱外移規劃,室內空間好規劃。
水岸第一排,無高架橋遮擋視野:
1,819坪大基地+純住宅規劃,是整個江翠重劃區最大純住宅基地。
基地方正三面臨路,無高架橋,2樓以上即享水岸第一排永久視野棟距。
2. 超低建蔽率,千坪四季花園,400坪全齡豐富公設:
建蔽率約22.8%,打造呼應江翠水岸的豐富花園景緻。
園林意象,設計有高低起伏小丘陵,增加景觀豐富性。
20米室內溫水泳池、KTV、琴藝室、全日餐廳、健身房、兒童遊戲室、棋藝室等等多樣公設。
健身房運用大面積落地窗,運動健身同時也可以欣賞完整中庭景觀。
3. SRC結構6級耐震,格局規劃佳:
優於國家耐震係數,耐震達6級,SRC結構強度全面升級。
格局方正好規劃,戶戶皆雙面採光,室內無小樑。
建材為Rinnai廚具、TOTO衛浴、Panasonic暖風機,並配有日本YKK氣密窗,有效隔絕噪音。
1層5-6戶配置3部電梯,電梯戶數比例佳,且每部電梯皆可直達地下室。
標準層樓高3.5M,樓地板厚度20CM、25CM,皆高於一般建案平均,室內空間感及隔音性更佳。






























