小檜溪重劃區坐落於桃園市核心區段,周邊圍繞多座商圈,為當地房市熱門區域之一,預售大樓案「昭揚天濤.」全案規劃均質四房90.01坪產品,主打由豪宅御用建築師李天鐸操刀外觀設計,且戶戶為南崁溪首排,享有永久棟距及水岸景觀視野。
昭揚天濤.
38.6萬/坪近1年
成交均價
40.6萬/坪
最高成交
34.6萬/坪
最低成交

昭揚天濤.外觀圖
1.社區規劃:「昭揚天濤.」建築正面南崁溪,戶戶都能享有永久棟距與水岸景觀。
2.生活機能:該案雖位處重劃區,但僅隔著南崁溪與大業大有商圈相望,就近即能享受豐富的機能。
3.房型規劃:均質4房三面採光設計,且單層2戶2梯配置,住戶出入單純,居住品質也不錯。
1.交通:重劃區由主幹道春日路貫穿,來往市區相當便利,但春日路本就容易塞車,上下交流道又得經過此路段,得事先考量交通堵車問題。
區域解析

地理位置
交通機能
車行7分鐘、距離2.2公里可達桃園車站;開車族沿春日路往北走,即可上南崁交流道銜接國道1號,往西走亦可上南桃園交流道銜接國道2號,另外距離施工中的捷運綠線G09站約1.1公里、步行約15分鐘。
生活機能
- 學校:車行2分鐘、距離750公尺可至青溪國小,車行3分鐘、距離1.3公里則可至青溪國中。
- 商業:鄰近大業大有商圈,日常採買可至全聯(桃園福元),車行約2分鐘、距離550公尺;另外,距離1公里、車行3分鐘,也有寶山黃昏市場,距離650公尺、車行2分鐘則有新永和市場。
- 休閒:基地對面就有繽紛之丘公園,設有沿溪人行步道及自行車道,步行1分鐘、距離約5公尺即能抵達。
社區規劃

「昭揚天濤.」由桃園在地昭揚建築、立燿建設投資興建,基地位在中央街,面積653.92坪,規劃1棟地上23層、地下3層建築,全案共44戶住家,採半毛胚交屋,屬於小型純住社區,車位為平面式109個,車位配比1:2.47;社區公設包括接待大廳、健身房、咖啡廳等,公設比33.72%。
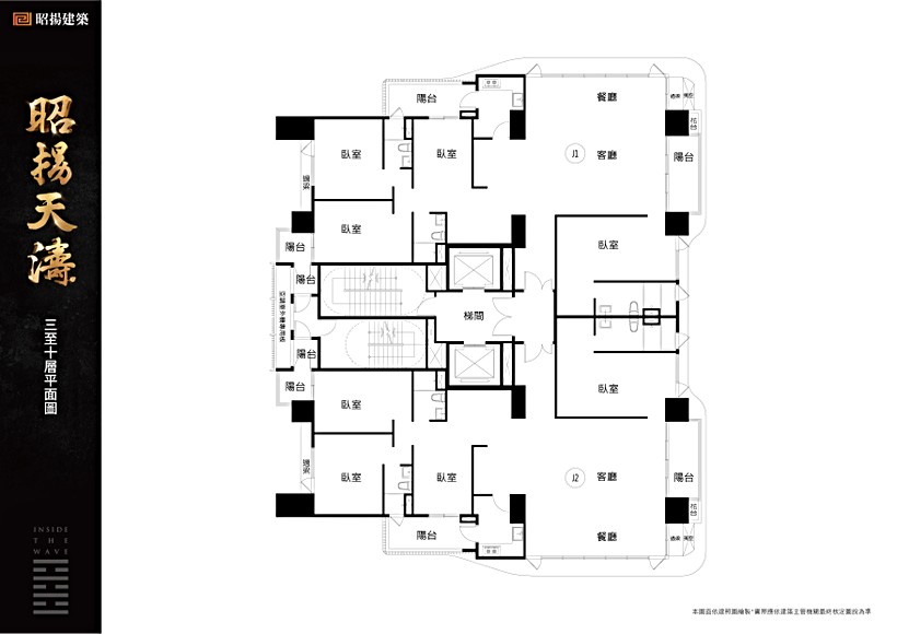
從標準層平面圖來看,單層2戶配有2部電梯,梯戶比1:1,且J1與J2戶為對稱設計、空間配置相似,皆為4房三面採光設計,惟兩戶都有電梯緊鄰,須留意是否有機械運轉噪音問題。
註:100戶以內為小社區,100~300戶中型社區、300戶以上大型社區
註: 1:4以上屬高梯戶比,1:3屬一般梯戶比,1:2、1:1屬低梯戶比,多是豪宅、小基地建案
格局解析
周邊比價
45萬/坪
均價(215筆 成交)
-
環比上月
-11.39%
同比去年
- 合輝大璽-萬象:新成屋,成交均價39萬/坪,低於區域13.53%,3+1房(48~61坪)、一般事務所/辦公室、三房(44坪)、店面,學區:青溪國小、青溪國中。
- 定泰臻翫:新成屋,成交均價39萬/坪,低於區域13.53%,三房(42~57坪)、店面,學區:青溪國小、青溪國中。
- 宜誠吾界:新成屋,成交均價38萬/坪,低於區域15.74%,三房(45~46坪)、四房(55~64坪)、店面、一般事務所/辦公室、樓中樓(50~70坪),學區:大業國小、大有國中。
- 宜雄盛場:新成屋,成交均價40萬/坪,低於區域11.31%,三房(37、43坪)、二房(29坪)、店面,學區:成功國小、文昌國中、桃園國中。
購買建議
「昭揚天濤.」位於小檜溪重劃區內,小環境新穎,社區梯戶比優秀且都有南崁溪景觀,只是重劃區主幹道春日路常有塞車問題,開車族可留意;因該案為大坪數設計,較適合換屋族或是大家庭,而J1與J2戶為對稱設計、空間配置相似,都是4房三面採光設計,由於採半毛胚交屋,除了房屋的金額,也須多準備裝潢資金,另外,一戶可能需要配到2個車位,亦拉高總價,購買前可事先確認。
開箱文滿意度調查
- 非常有幫助
- 有一些幫助
- 沒什麼用










