55.3萬/坪近1年
成交均價
60.0萬/坪
最高成交
48.5萬/坪
最低成交

遠雄夏沐外觀圖
環境:「遠雄夏沐」正面音樂之林公園綠地與南崁溪水岸,部分戶別可同時享有綠意和水岸景觀。
社區規劃:社區4戶2梯配置,梯戶比1:2,且規劃均質3~3+1房產品,能維持較好的居住品質。
發展前景:鄰近施工中的捷運綠線G09站,待通車後,又多了一項交通選擇。
- 交通:重劃區由主幹道春日路貫穿,來往市區相當便利,但春日路本就容易塞車,上下南崁交流道又得經過此路段,開車族得事先考量交通堵車問題。
區域解析
社區規劃

「遠雄夏沐」是由遠雄建設投資興建,基地位在春日路、民光東路口,面積1183.15坪,規劃1棟地上22層、地下3層建築,全案共159戶住家、8戶店面+事務所,屬於中型社區,車位為平面式172個,車位配比1:1.02,並預留有充電樁管線;社區公設包括接待大廳、中庭花園、空中花園、交誼廳、健身房、瑜伽教室、信箱區、曬被區等,公設比34.41%。
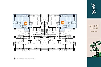
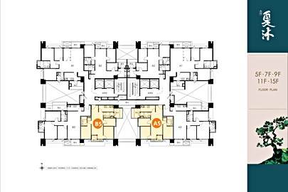
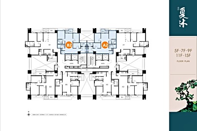
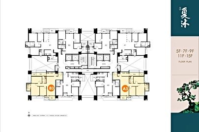
從標準層平面圖來看,分成A、B兩區,兩區皆為4戶2梯的配置,梯戶比1:2;格局方面,因A、B兩區大致為對稱設計,故A1與B1格局相似、三面採光,而客用衛浴開窗規劃於採光井,A2與B2格局相似、雙面採光,而小間次臥之開窗規劃於陽台和採光井,A3與B3格局相似、三面採光,而客用衛浴開窗規劃於陽台,至於A5與B5亦為相似格局、雙面採光,而小間次臥開窗於採光井、客用衛浴開窗則在陽台。
註:100戶以內為小社區,100~300戶中型社區、300戶以上大型社區
註: 1:4以上屬高梯戶比,1:3屬一般梯戶比,1:2、1:1屬低梯戶比,多是豪宅、小基地建案
格局解析
周邊比價
45萬/坪
均價(215筆 成交)
-
環比上月
-11.39%
同比去年
- 麗寶南法莊園-蒙地卡羅:新成屋,成交均價52萬/坪,高於區域15.3%,三房(38.99坪)、3+1房(57.85坪),學區:青溪國小、青溪國中。
- 三本大序:預售屋,成交均價56萬/坪,高於區域24.17%,二房(25坪)、三房(35-37坪)、3+1房(47坪)、店面,學區:青溪國小、青溪國中。
- 三本四季:預售屋,成交均價52萬/坪,高於區域15.3%,二房(22-25坪)、三房(36坪)、店面,學區:青溪國小、青溪國中。
- 可頌:新成屋,成交均價51萬/坪,高於區域13.08%,三房(46坪)、二房(32坪)、店面,學區:青溪國小、青溪國中。
購買建議
「遠雄夏沐」位在小檜溪重劃區,周邊亦有捷運綠線建設議題,惟全案有少部分事務所產品,須留意出入人口是否複雜,且主幹道春日路常有塞車問題,開車族得留意;推薦B1戶3+1房產品給換屋的朋友,為三面採光、明廳設計,臥室和衛浴間間開窗的格局,且主要開窗面公園綠地與水岸,可享有不錯的視野景觀,加上亦屬雙面臨路的戶別,較不需要擔心棟距與採光問題。
開箱文滿意度調查
- 非常有幫助
- 有一些幫助
- 沒什麼用














